Aktuelles
Patchway-Anger – Wie geht es weiter?
Nachdem der Gemeinderat Gauting ein großes Beschlusspaket zum städtebaulichen Konzept des „Patchway-Angers“ beschlossen hatte, wurden die Träger öffentlicher Belange und die Öffentlichkeit beteiligt und der Bauausschuss befasste sich öffentlich mit deren Anregungen und Stellungnahmen.
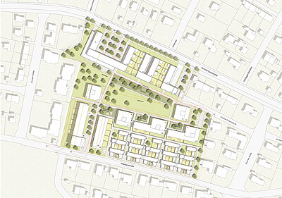
Im Plangebiet liegen die Flächen von vier Eigentümern, die konsensual eine Einheit aus bezahlbarem Wohnraum in einem modernen Quartier schaffen wollen. Gemeinderäte haben dem Projekt den Namen „sozial-ökologische Mustersiedlung“ gegeben. Neben einem Mobilitätsmanagement mit alternativer Mobilität, ökologischen Ansätzen, Nutzung von regenerativer Energie, intensiver Begrünung, Nachhaltigkeit etc. ist auch ein Quartiersmanagement angedacht. Die Menschen, die dort wohnen werden, sollen direkte Ansprache z.B. für Problemlösungen finden. Aufgabe des Managements wäre es aber auch, verbindend tätig zu sein und Möglichkeiten zur Begegnung zu schaffen.
Momentan laufen auch weitere wichtige Planungen: Es geht um Verkehrsflächen – wie weit können diese reduziert werden, dass dennoch kurze Wege zu Fuß und mit dem Rad ermöglicht werden können. Die Versickerungsfähigkeit des Bodens ist angesichts zunehmender Starkregenereignisse ebenfalls ein wichtiges Thema. Eine wichtige Änderung der letzten Zeit betrifft die Höhe der Bebauung: Diese wurde im Westen deutlich verringert und die zugelassene Baumasse dadurch insgesamt weiter reduziert.
Die öffentliche Auslegung der Bebauungspläne hat im Sommer 2025 erneut stattgefunden, es gingen zahlreiche Stellungnahmen ein und führten bereits zu geringfügen Änderungen bei den Festsetzungen des Bebauungsplans. Ende Januar 2026 sollen für den Nordteil die beschlossenen Änderungen in einer verkürzten Auslegung erneut öffentlich gemacht werden. Der Südteil braucht noch Vereinbarungen mit den Planbegünstigten.
Bürgerdialog "Patchway-Anger" 20.10.2021
Ca. 150 Gautingerinnen und Gautinger folgten der Einladung der Verwaltung, am Bürgerdialog Bebauungsplan Nr. 189 u. 190/Gauting „Am Patchway-Anger“ teilzunehmen. Ein Vortrag des Architekten des Siegerentwurfs, Herr Prof. Hebensperger-Hüther und der Stadtplanerin Frau Skorka, führte durch die Geschichte des noch bestehenden Bebauungsplan Nr. 100/Gauting und der Entwicklung hin zu den bestehenden Planungen. Durch mehrere Bürgerbeteiligungen, öffentlich wie auch nichtöffentlich mit den Anwohnern, wurden Wünsche und Anregungen aufgenommen, die von den Planern großenteils umgesetzt wurden. Die Reaktion auf die durchgeführten Änderungen sind durchwegs positiv.
An verschiedenen Themeninseln konnten die Besucherinnen und Besucher gezielt zu den Punkten nachfragen. Die Präsentation zu den jeweiligen Themenschwerpunkten finden Sie hier.
Die Bürgerbeteiligung ist seit dem 30. November 2021 abgeschlossen.
Bildrechte der Plakate: ekh. Werbeagentur GbR • MUC, Ten Brinke, Geoatlas Bayern, H2R-Architekten, stattbau münchen GmbH
Videobeiträge zum Bürgerdialog "Patchway-Anger"
-
Vortrag Herr Prof. Hebensperger-Hüther
Beim Abspielen werden Daten an YouTube gesendet. Weitere Informationen hier.
-
Vortrag Frau Skorka
Beim Abspielen werden Daten an YouTube gesendet. Weitere Informationen hier.
Rückblick: Vom Bebauungsplan Nr. 100/Gauting "ehemals AOA" zum "Patchway-Anger"
Bebauungsplan Nr. 100/Gauting
Zu den Zielvorstellungen des Bebauungsplans Nr. 100/GAUTING heißt es in der städtebaulichen Begründung dieses Bebauungsplans:
„Die noch unbebauten Grundstücke im Bebauungsplanumgriff sollen überwiegend für sozialen Wohnungsbau, angrenzend an die bereits vorhandenen Gebäude in der Danziger Straße, verwendet werden. Diese Fläche ist eine der wenigen Flächen im Gemeindegebiet, wo eine Unterbringung dieser Nutzung überhaupt noch möglich ist. Gleichzeitig ist aber auch die Abgrenzung dieser Fläche zum nördlich angrenzenden Gewerbegebiet in Hinsicht auf die Forderungen des Immissionsschutzes zu lösen, ebenso wie die verkehrliche Anbindung an das übergeordnete Straßennetz. Darüber hinaus ist für das Gewerbegrundstück der Rahmen der zukünftigen Bebaubarkeit und der damit verbundenen Erschließung abzustecken.“
Zur Abgrenzung von Gewerbe und Wohnen wurde ein eineinhalbgeschossiges Garagengebäude mit steilem Satteldach, das gleichzeitig dem Immissionsschutz dienen sollte, vorgesehen.
Städtebaulicher Wettbewerb
Der im Bebauungsplan Nr. 100/GAUTING vorgesehene Wohnungsbau hätte erst nach einem Umlegungsverfahren mit einer Grundstücksneuaufteilung stattfinden können. Dazu ist es nie gekommen. Kontrovers diskutiert wurde auch immer wieder der langgezogene Riegel des Garagengebäudes. Anlass zum Handeln gab dann die Verlagerung des Produktionsstandortes von AOA und die Versuche zu einer Nachfolgenutzung.
Letztendlich wurde man sich einig über die Durchführung eines städtebaulichen Wettbewerbes.
Wettbewerbssieger war der Entwurf des Architekturbüros H2R München. Am 02.05.2018 ist die öffentliche Ausstellung über die Bebauungsplankonzepte, die im Rahmen des städtebaulichen Realisierungswettbewerbes für das Gebiet des Bebauungsplans Nr. 100/GAUTING eingereicht worden waren, eröffnet worden. Zugleich wurde der Öffentlichkeit die Möglichkeit gegeben, Anregungen zu dieser Planung einzureichen.
Beteiligungen
In keinem städtebaulichen Planungsprozess der Gemeinde Gauting haben so viele Beteiligungen stattgefunden wie in der städtebaulichen Entwicklung von „ehemals AOA“ zum „Patchway-Anger“.
Und immer wieder wurden Wünsche und Anregungen in die Planung einbezogen und haben zu Veränderungen geführt.
03.05.2018
Vorstellung des Siegerentwurfs des städtebaulichen Wettbewerbs
Der Siegerentwurf wurde im Bosco vorgestellt und erläutert. Bürger und Interessenverbände nutzten die Möglichkeit zu Stellungnahmen, Fragen und Anregungen. Im Anschluss an diesen Termin gingen weitere Anregungen ein.
Die Planung wurde mit Beschluss des Bauausschusses vom 27.11.2018 angepasst.
An den städtebaulichen Wettbewerb wurde ein Rahmenplanverfahren angeschlossen. Innerhalb dieses Verfahrens sollen Wettbewerbsideen konkreter entwickelt werden.
Es wurden zwischen Dezember 2018 und April 2019 diverse weitere Beteiligungen durchgeführt.
Aufgrund der Gespräche wurde eine Vielzahl von Anregungen zum Entwurf eingereicht. Deutlich erkennbar wurde daraus, dass bereits vor einem Bauleitplanverfahren ein Verkehrsgutachten mit Verkehrserhebungen von großer Bedeutung wäre.
Die Präsentation des beauftragten Verkehrsgutachtens für 73 eingeladene direkt betroffene Nachbarn und den Gemeinderat erfolgte am 24.07.2019. Auch hier gab es Anregungen zur Verkehrsplanung.
Das Gutachten wurde überarbeitet und am 24.03.2020 im Umwelt-Energie und Verkehrsausschuss präsentiert.
An der Planung wurden aufgrund der Anregungen diverse Änderungen vorgenommen:
- Gebäudehöhen zu benachbarten Grundstücken im Nordosten, Osten und Südwesten wurden reduziert
- Zufahrten zum nördlichen Grundstück wurden von vier auf zwei reduziert
- Für die Atriumhäuser wurde eine Tiefgarage vorgesehen
- Überarbeitung des Verkehrsgutachtens: Empfehlung eines verkehrsberuhigten Bereiches (Spielstraße) für einen Teil der Pötschenerstraße, der Gartenpromenade, Hiltlstraße und Hildegardstraße
Am 10.09.2019 wurden sämtliche Anregungen zum Abschluss des Rahmenplanverfahrens zusammengefasst. Sie wurden dem Planungsbüro Skorka, das mit der Durchführung der Bauleitplanung beauftragt wurde übergeben, damit die Anregungen in den Bauleitplänen Berücksichtigung finden.
Am 08.10.2019 wurde vom Bauausschuss bzw. am 19.11.2019 vom Gemeinderat der Aufstellungs- /Änderungsbeschluss für die Bebauungspläne Nr. 189 + 190/ GAUTING „Patchway-Anger“ bzw. Flächennutzungsplan gefasst.
Die weitere Planung ruhte bedingt durch den kommunalen Wahlkampf und die Neuzusammensetzung des Gemeinderates.
Ergebnis nach einigen Beratungen und zwei Bauausschussklausuren war die Neuausrichtung der städtebaulichen Ziele der Bauleitplanung.
Der Bauausschuss hat beschlossen, zu diesen städtebaulichen Zielen ein weiteres Beteiligungsverfahren durchzuführen: Den Bürgerdialog "Patchway-Anger" vom 20.10.2021.